Vyhledávání


Kontakt

Projektová kancelář ATLAS s.r.o.
Severozápadní III 343/12
Praha 4 - Spořilov
141 00

dat.schránka: 5z5r2pm

e-mail:
chrobok@pkatlas.cz
friedbergerova@pkatlas.cz

telefon:
608 125 476
607 186 251

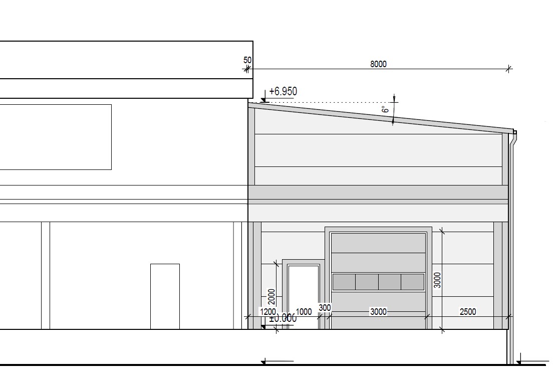
Výrobní a skladové objekty

Přístavba skladové haly Kunice

Projekt pro povolení záměru 09/2025, povolení v řešení 2025.

Přístavba stávající skladové haly, která je koncipována jako jednoduchý halový objekt s pultovou střechou a opláštěný sendvičovými panely.

sedvičovými panely (plech) v světlé šedé barvě.

Šatny v zemědělském areálu Praha 5

Projekt pro dodatečné povolení záměru 12/2024, povolení stavby v řešení 2025.

Legalizace pomocné stavby objektu šaten pro zaměstnance rodinné farmy.

 

 

Přístřešek v zemědělském areálu Praha 5

Projekt pro dodatečné povolení záměru 12/2024, povolení stavby v řešení 2025.

Legalizace otevřené skladovací haly pro zemědělské produkty a zároveň jako přístřešek pro parkování zemědělské techniky.

(sklad obilí) a zároveň jako přístřešek pro parkování zemědělské techniky.

Novostavba servisní haly Kunice

Projekt pro stavební povolení 04/2024, povolení 11/2024, ve výstavbě 2025, změna stavby před dokončením 09/2025, povolení v řešení 2025.

Novostavba skladovací a servisní haly.

 

Modernizace areálu Praha 15

Projekt pro územní rozhodnutí a stavební povolení 04/2021, ve výstavbě

Jedná se o jednoduché halové výrobní objekty, které jsou koncipovány do jednoho funkčně propojeného celku ve stávajícím průmyslovém a výrobním areálu. Součástí záměru bylo i vedení technické infrastruktury, sadové a terénní úpravy, oplocení a vjezd.

 

Jedná se o jednoduché halové výrobní objekty, které jsou koncipovány do jednoho
funkčně propojeného celku.
Jedná se o obdélníkové stavby s plochou střechou, popřípadě se sedlovou střechou
s mírným sklonem a atikou.

Dostavba skladových hal Zápy

Projekt pro stavební povolení, povolení stavby, projekt pro změnu stavby před dokončením 03/2018, povolení změny stavby před dokončením 06/2018, kolaudace stavby 07/2018.

Novostavba skladovací haly, zpočátku ocelová konstrukce upravena na betonovou.

  

Rampa Uhříněves

Projekt pro stavební povolení 02/2017, povolení stavby 09/2017.

Jedná se stávající objekt zastřešené překladové rampy v blízkosti kolejové vlečky, ve kterém budou provedeny stavební úpravy spočívající v opláštění fasády a střechy. Objekt zůstane jednopodlažní pro účely skladování.

Modernizace areálu Hostivař a.s.
U Továren 770, Praha 10, modernizace areálu Hostivař a.s., pravomocné ÚR na dostavbu areálu - 7 objektů, stav : hala 15, 16A, 16B realizována, po kolaudaci v užívání, hala D - změna územního rozhodnutí, PD pro stavební řízení v přípravě. 2007-doposud

Centrum digitálního tisku Powerprint
kat. ú. Horoměřice, č.parc. 109/8, dvě halové stavby propojené spojovacím krčkem sloužící pro potřeby společnosti Powerprint, která se zabývá reprografickými službami a digitálním tiskem knih a publikací, celková zastavěná plocha : 1142m2, PD pro územní řízení, PD pro stavební povolení, PD pro výběr zhotovitele, autorský dozor, realizace duben 2014 -

Jízdárna Pohořelec
Keplerova 213, Praha 6, generální rekonstrukce objektu jízdárny a přístavku, zkapacitnění skladů Správy Pražského hradu, PD pro stavební povolení, realizační projekt, autorský dozor, realizace 2012